The Scout
Abram's AI · Online 24/7
🤖 AI assistant — not Abram. For personal advice, call (647) 527-6077
Your personal real estate scout
Listings, market insights, and showings — instant.

609 - Alfred, Alfred and Plantagenet, ON K0B 1A0
$550,000
The listing data is provided under copyright by the Toronto Regional Real Estate Board (TRREB). The listing data is deemed reliable but is not guaranteed accurate by TRREB. The trademarks MLS®, Multiple Listing Service® and the associated logos are owned by The Canadian Real Estate Association (CREA) and identify the quality of services provided by real estate professionals who are members of CREA.
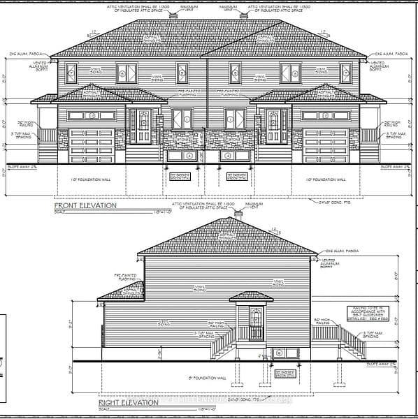
Own a brand new build 3 Bedroom and 3 Bathroom Semi-Detached. Be the first owner, choose your finishes, choose your preferred lot, directly from the builder. Korede Havens in the impressive hamlet Alfred Crossing, is a small upscale community where luxury meets affordability . High quality residences are thoughtfully designed to cater to various lifestyles, offering unparalleled comfort and style. Whatever you seek a cozy starter or an opulent estate, Korede Havens provides exceptional value without compromising on elegance or functionality. Experience upscale living at a price that fits your budget. EV Charger Included!