The Scout
Abram's AI · Online 24/7
🤖 AI assistant — not Abram. For personal advice, call (647) 527-6077
Your personal real estate scout
Listings, market insights, and showings — instant.

Binbrook, Hamilton, ON L0R 1C0
$3,999,900
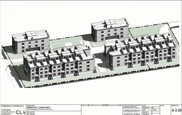
Discover a prime residential development opportunity in the heart of Binbrook, one of Hamilton's fastest-growing communities. This 1.962-acre site at 3140-3150 Binbrook Road is draft-plan approved for 24 townhome units, each featuring three bedrooms and three bathrooms, with additional potential for three single-detached lots in the northern portion. In addition to the current approvals, a more efficient site layout and building configuration may support an increase in yield of approximately 44 townhouse units, subject to municipal approvals and the purchaser's planning review and due diligence. Zoned RM3-321 and fully serviced, the property is within walking distance of shopping, restaurants, and schools, and offers convenient access to Highway 403, Lincoln Alexander Parkway, and the QEW via Redhill. With approximately 44,800 square feet of buildable area and an appraised value of $5,850,000 (2023), this is a rare opportunity for builders and developers seeking to meet strong demand for family housing in a growing community that blends small-town charm with big-city convenience. The seller can assist with financing.
The listing data is provided under copyright by the Toronto Regional Real Estate Board (TRREB). The listing data is deemed reliable but is not guaranteed accurate by TRREB. The trademarks MLS®, Multiple Listing Service® and the associated logos are owned by The Canadian Real Estate Association (CREA) and identify the quality of services provided by real estate professionals who are members of CREA.
Property Type
Land
Lot Size
200.0 × 426.6 ft
Heating
None
Cooling
No
Taxes
$15,417.29 (2025)
Possession
Flexible