The Scout
Abram's AI · Online 24/7
🤖 AI assistant — not Abram. For personal advice, call (647) 527-6077
Your personal real estate scout
Listings, market insights, and showings — instant.

Bullock, Markham, ON L3P 1E7
$1,215,000
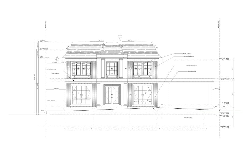
Location! Location! Location! A rare chance to build your dream house on a generous 80 x 100 ft lot in the highly desirable Bullock neighborhood, surrounded by luxury multi-million dollar homes. Located on a prestigious street in the heart of Markham, this prime lot is just a short walk from the serene Milne Conservation Area, offering endless possibilities. With easy access to Hwy 7/407, shopping centers, supermarkets, and diverse dining options, convenience is at your doorstep. The neighborhood is known for its exceptional quality of life, top-ranked schools, and abundant outdoor recreation. Enjoy scenic hiking and biking trails, while Milne Lake offers year-round activities such as skating, canoeing, and breathtaking seasonal fireworks. All trees within the building envelope can be removed, as an approved arborist report is in place. With excellent grading and ideal North/South exposure, this property presents the perfect opportunity to build your dream home. **EXTRAS** This expansive lot not only offers a foundation for your vision but also promises a lifestyle of peace, convenience, and proximity to Markham's premier amenities. Legal Description: Lucky Number 18.
The listing data is provided under copyright by the Toronto Regional Real Estate Board (TRREB). The listing data is deemed reliable but is not guaranteed accurate by TRREB. The trademarks MLS®, Multiple Listing Service® and the associated logos are owned by The Canadian Real Estate Association (CREA) and identify the quality of services provided by real estate professionals who are members of CREA.