The Scout
Abram's AI · Online 24/7
🤖 AI assistant — not Abram. For personal advice, call (647) 527-6077
Your personal real estate scout
Listings, market insights, and showings — instant.

Rural Whitchurch-Stouffville, Whitchurch-Stouffville, ON L0G 1E0
$999,000
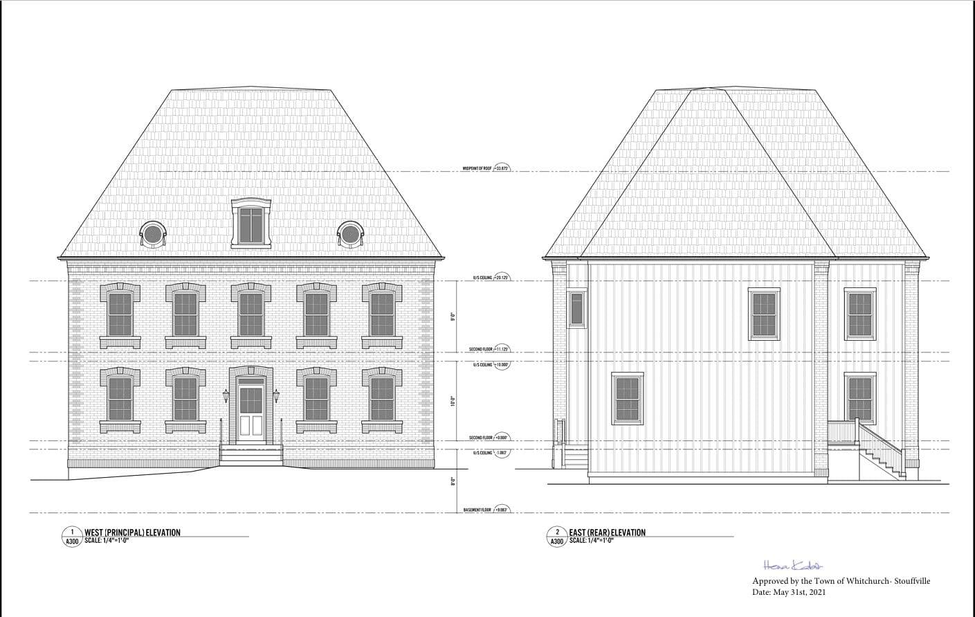
Nature Meets Luxury! Discover this absolutely stunning vacant lot in the charming hamlet of Cedar Valley, Stouffville. This beautifully 77' x 200' parcel comes with site plan approval for a 4,400 sq. ft. luxury home, perfectly positioned on a peaceful street where McCowan Road ends at Cherry Street ensuring minimal traffic and maximum privacy. Bordering the 52-acre Mitchell Tract and directly opposite 120 acres of York Region Forest, this location is a haven for nature lovers. Explore over 800 acres of connected forest with walking, cycling, and horseback riding trails, plus excellent boarding facilities nearby. Surrounded by custom-built, multi-million dollar homes, this property offers the ideal blend of tranquillity and prestige. Just minutes from Hwy 404 and easily accessible from Toronto, its a prime location for your dream home.
The listing data is provided under copyright by the Toronto Regional Real Estate Board (TRREB). The listing data is deemed reliable but is not guaranteed accurate by TRREB. The trademarks MLS®, Multiple Listing Service® and the associated logos are owned by The Canadian Real Estate Association (CREA) and identify the quality of services provided by real estate professionals who are members of CREA.