The Scout
Abram's AI · Online 24/7
🤖 AI assistant — not Abram. For personal advice, call (647) 527-6077
Your personal real estate scout
Listings, market insights, and showings — instant.

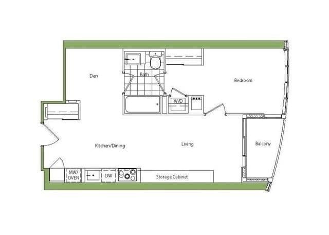
Waterfront Communities C1, Toronto C01, ON M5V 4A9
$2,500/month
Prime Downtown Location; Approx. 590S.F.+36 S.F. Balcony; 1Br+Den(Can Be 2nd Br); E Exposure W/City Skyline View; Laminate Flooring Throughout; Functional Layout W/Semi-Ensuite Design; Steps To Ttc, Rogers Crt, Lakefront, Library, Supermarket, Restaurant, Entertainment &Financial District; Nearby Access To Gardiner; Complete Amenities: Indoor Pool, Gym, Guest Suites, 24 Hrs Concierge & Much More.
The listing data is provided under copyright by the Toronto Regional Real Estate Board (TRREB). The listing data is deemed reliable but is not guaranteed accurate by TRREB. The trademarks MLS®, Multiple Listing Service® and the associated logos are owned by The Canadian Real Estate Association (CREA) and identify the quality of services provided by real estate professionals who are members of CREA.